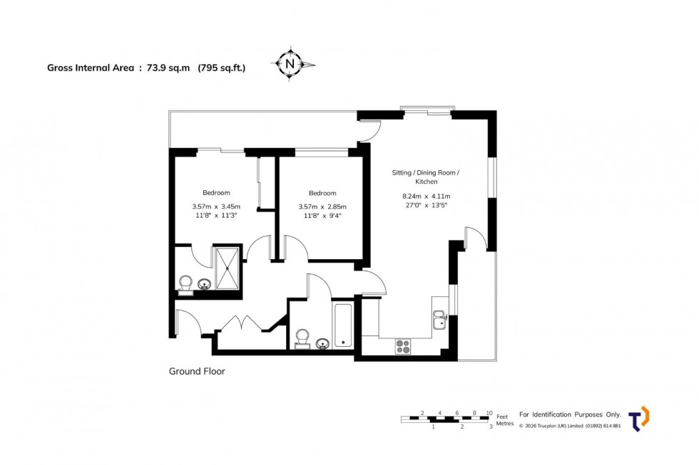
Floorplan for Eden Road, Dunton Green, Sevenoaks
EPC Graph for Eden Road, Dunton Green, Sevenoaks

2 Bedrooms Flat - For Sale Eden Road, Dunton Green, Sevenoaks - - Asking Price £425,000

2 2 1

Key Features

  • Spacious and well presented
  • EPC rating B
  • Allocated parking
  • Access to the onsite gym
  • Access to private woodlands
  • 2 bathrooms
  • Council tax band C

Exceptional example of a two bedroom ground floor apartment finished to a high standard throughout, situated on the popular Rye Wood development close to local amenities and a short walk to Dunton Green station.

Secure communal main entrance and private flat entry.

ACCOMMODATION: Entrance hall with utility cupboard housing washer-dryer. The reception room boasts 2 sets of patio doors fitted with plantation shutters and opening to separate balconies; the designated dining and living areas lead in to a modern fitted kitchen with a range of integrated appliances including a gas hob, electric oven, microwave, fridge-freezer and dishwasher. Master double bedroom with patio doors to balcony and plantation shutters, ensuite shower room with large shower cubicle. Further double bedroom. Main bathroom with panelled bath and shower over.

Two private exterior patio/balconies. Allocated parking space in gated under croft car park. Additional visitor parking available. Membership to on-site gym and access to private woodlands.

EPC rating: B
Council Tax Band: C
Mains: gas-electricity-water-sewerage
Heating: mains gas
Service charge: TBC £2202.70 per annum
Ground rent: £437.66 per annum
Local Authority: Sevenoaks District Council
Tenure: Leasehold 237 years remaining


Location