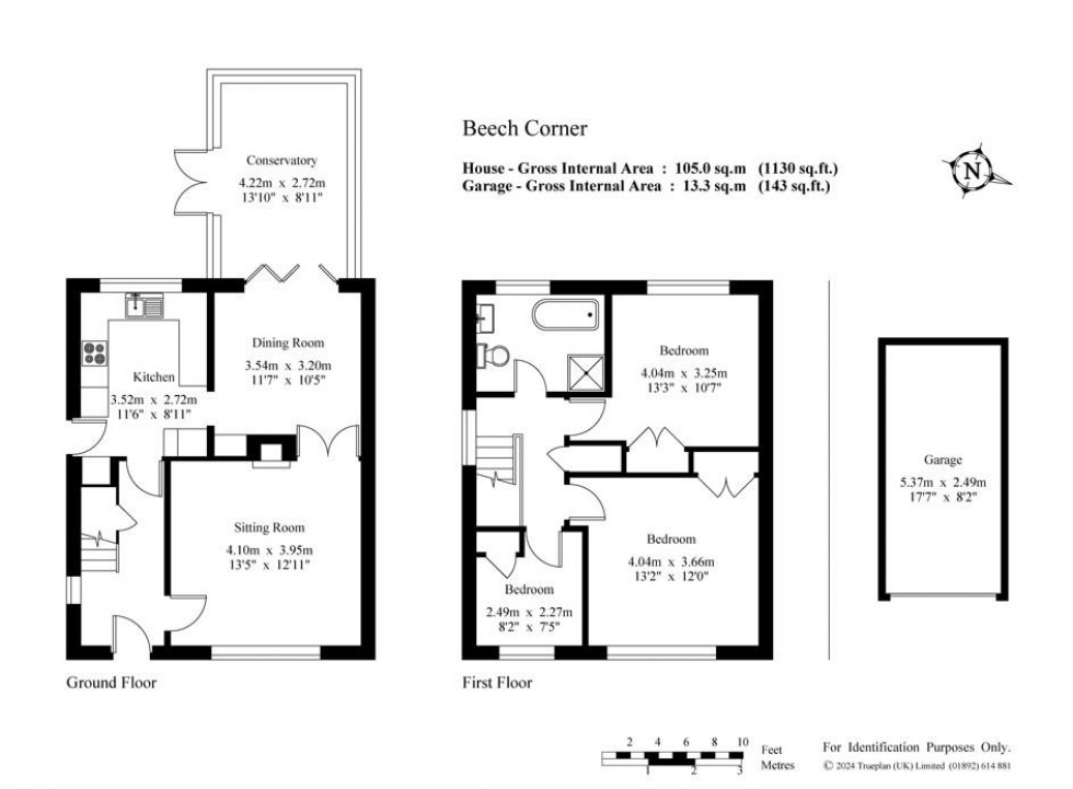
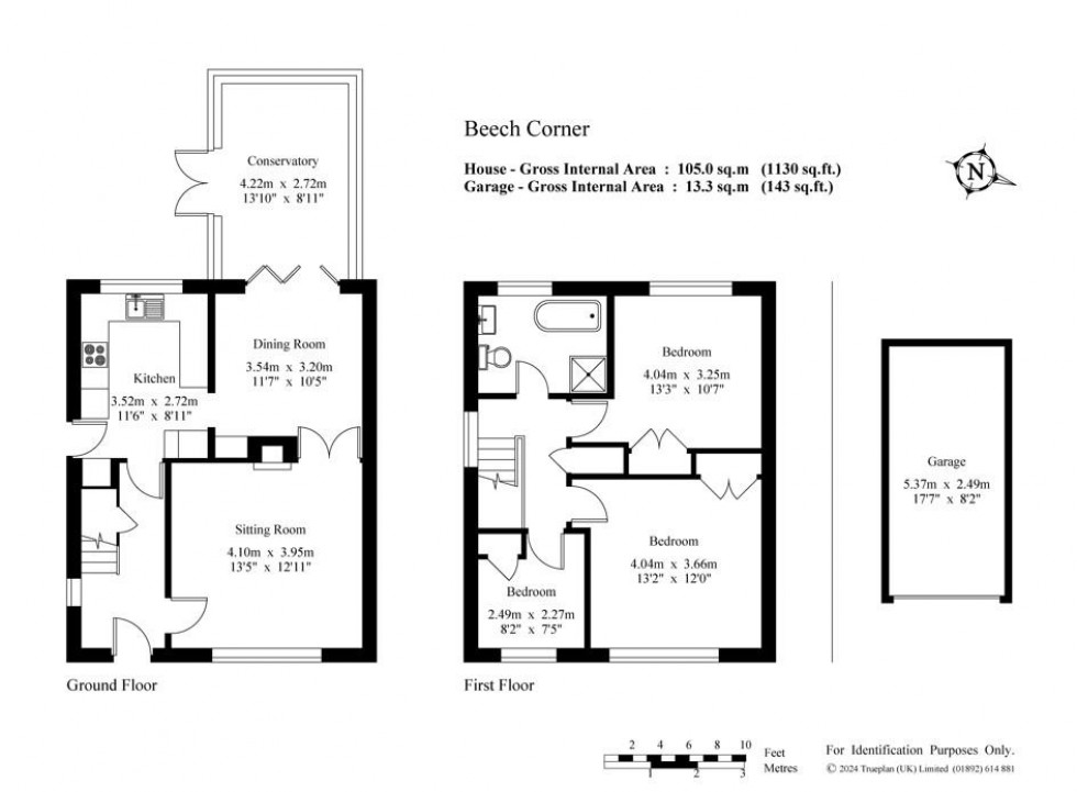
Floorplan for Homedean Road, Chipstead
EPC Graph for Homedean Road, Chipstead

3 Bedrooms House - Semi-Detached - For Sale Homedean Road, Chipstead - - Price Guide £650,000

3 1 3

Key Features

  • Beautiful garden with hot tub
  • Electric car charger
  • Garage & Parking
  • Covered storage area
  • Potential to extend STPP
  • Large fully boarded loft
  • Working fireplace

Beech Corner is a three bedroom semi detached house situated in the popular village of Chipstead, within walking distance of 2 good primary schools.

ACCOMMODATION
Guide Price £650,000 - £675,000. The property is presented and maintained to a very high standard. Entrance hallway with storage. Main reception room with exposed brick fireplace leading through to dining room. Conservatory with doors to the garden. Modern kitchen with fitted units and utility cupboard. Stairs to the first floor landing. Two double bedrooms and one single room. Bathroom with free standing roll top bath, walk in shower, basin and toilet. Large, fully boarded loft.

OUTSIDE
Beautiful sunny garden with decking area and lawn. Hot tub area with decking and shed with power supply. Driveway parking for two vehicles with electric car charger, additional parking available in lay by in front of house. Covered storage area and side access. Single garage en bloc.

UTILITIES & KEY INFORMATION
Mains gas/electricity/water/sewerage
Heating: mains gas
Local authority: Sevenoaks District Council
Council Tax Band: E


Location