LET
LET
LET
LET
LET
LET
LET
LET
LET
LET
LET
LET
LET
LET
LET
LET
LET
LET
LET
LET
LET
LET
LET
LET
LET
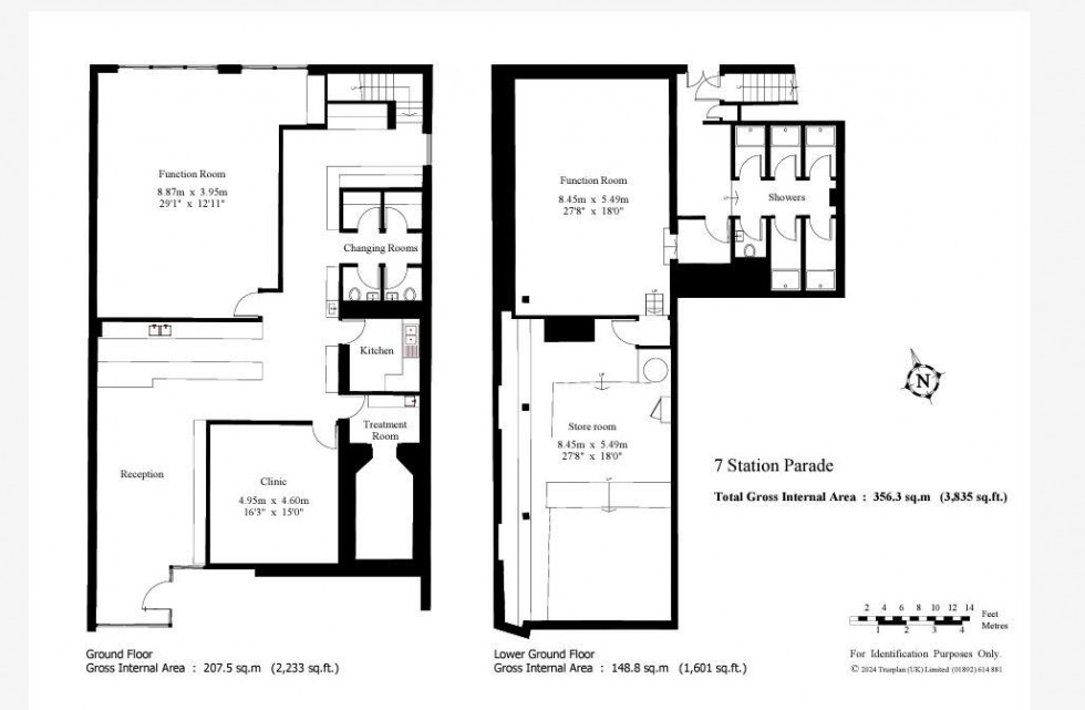
Floorplan for Sevenoaks. Kent

Commercial - Let Sevenoaks. Kent - POA

Key Features

  • Prime Sevenoaks location opposite Sevenoaks Station
  • Over 3800 sq ft arranged over 2 floors
  • Currently fitted as a boutique gym
  • Parking for up to 4 cars and courtyard area
  • Versatile space easily adapted to suit many businesses
  • Short term lease considered

Short term lease considered
Substantial commercial property (3835 sq ft/356.3 m in total) in a prime prominent location opposite Sevenoaks Main Line Station arranged over 2 floors. The property was previously let as a gym but would suit many businesses.

Ground Floor: reception area with seating bench, space for retail, counter for food and beverage serving. 2 studios, treatment room with attached office, kitchen, toilets and changing rooms.

Lower Ground Floor: large spin studio with stage area, showers, toilet and changing room Substantial storage room.

Outside: Parking for up to 3 - 4 cars, side and rear courtyard, cycle storage.

Terms - A new lease available, terms to be agreed.
Current rateable value - £51,000
Possession - Upon completion of legal formalities.
Legal Costs - Each party to be responsible for their own legal costs.
Viewing: Strictly by appointment with Cavendish


Location